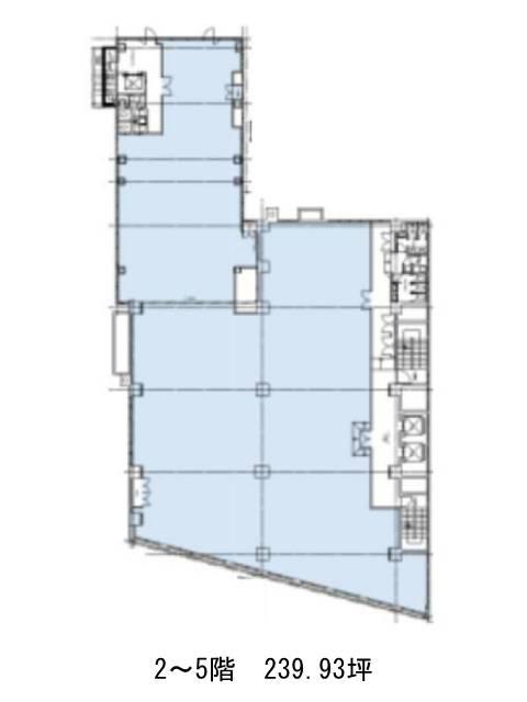
5階は現在募集がありません
赤坂KOSENビル 5階
物件概要
赤坂KOSENビルのテナント募集中区画
現在、空室がございません。
アクセス
赤坂KOSENビルの物件情報
赤坂KOSENビル(港区赤坂)は赤坂見附駅(出口4)から徒歩6分の賃貸オフィスです。1974年竣工の地上8階、地下2階建てのビルです。エントランスやエレベーターホールはとても広々としており、開放感があります。また周辺にはコンビニや飲食店があるため、ランチも楽しめるでしょう。ビル内にはOAフロアが備えられており、トイレは男女別となっております。またエレベーターが5基も設置されているため移動にも困らないでしょう。そしてセキュリティは機械警備を導入しているため、安心です。赤坂KOSENビルは赤坂見附駅(出口4)の他に永田町駅(7番出口)徒歩7分、赤坂駅(1番出口)徒歩10分で利用も可能です。

