3階 分割①は現在募集がありません
赤坂メープルヒル 3階 分割①
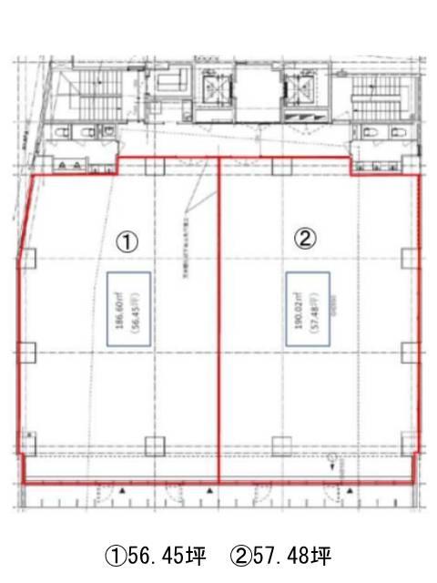
物件概要
赤坂メープルヒルのテナント募集中区画
現在、空室がございません。
アクセス
赤坂メープルヒルの物件情報
赤坂メープルヒル(港区赤坂)は赤坂駅(7番出口)から徒歩5分の賃貸オフィスです。赤坂メープルヒルは赤坂駅(7番出口)の他に六本木一丁目駅(3番出口)徒歩9分、溜池山王駅(11番出口)徒歩9分で利用も可能です。

