5階は現在募集がありません
ルー・ド赤坂ビル 5階
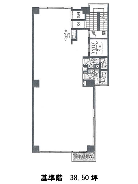
物件概要
ルー・ド赤坂ビルのテナント募集中区画
現在、空室がございません。
アクセス
ルー・ド赤坂ビルの物件情報
ルー・ド赤坂ビル(港区赤坂)は赤坂駅(7番出口)から徒歩3分の賃貸オフィスです。ルー・ド赤坂ビルは赤坂駅(7番出口)の他に乃木坂駅(1番出口)徒歩9分、赤坂見附駅(出口1)徒歩11分で利用も可能です。

