1階は現在募集がありません
レドンドビル 1階
物件概要
レドンドビルのテナント募集中区画
現在、空室がございません。
アクセス
レドンドビルの物件情報
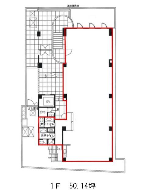
レドンドビル(港区赤坂)は赤坂駅(5a番出口)から徒歩6分の賃貸オフィスです。1988年竣工、地上5階地下1階建のビルです。新耐震基準に適合しております。エントランスは半円のガラス張りになっており、ご案内時の目印としてわかりやすいでしょう。共用部はベージュの色合いをした天然石を仕様し、明るく高級感のあるデザインになっております。貸室は50坪前後のものがそろい、小規模の事務所をお探しの方に良いでしょう。EV・駐車場・男女別トイレ・個別空調といった設備仕様で、セキュリティは安心の機械警備を導入しています。レドンドビルは赤坂駅(5a番出口)の他に溜池山王駅(12番出口)徒歩6分、六本木一丁目駅(3番出口)徒歩6分で利用も可能です。

