9階は現在募集がありません
ホワイト赤坂ビル 9階
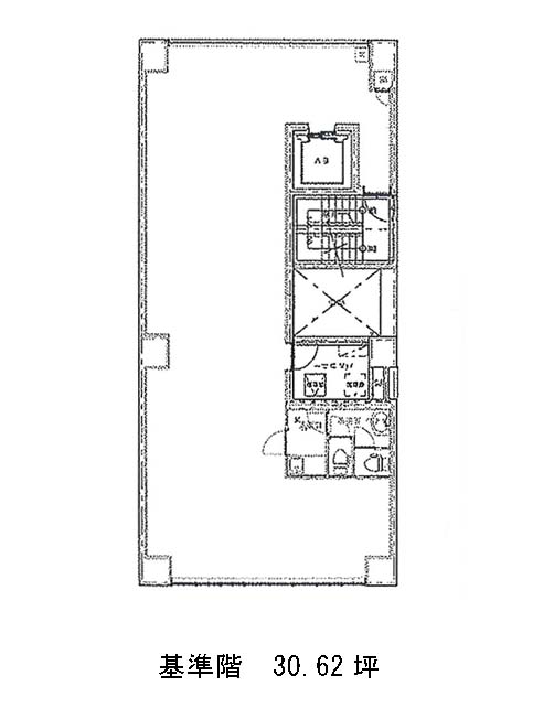
物件概要
ホワイト赤坂ビルのテナント募集中区画
現在、空室がございません。
アクセス
ホワイト赤坂ビルの物件情報
ホワイト赤坂ビル(港区赤坂)は赤坂駅(7番出口)から徒歩1分の賃貸オフィスです。ホワイト赤坂ビルは赤坂駅(7番出口)の他に赤坂見附駅(出口1)徒歩9分、溜池山王駅(7番出口)徒歩9分で利用も可能です。

