2階は現在募集がありません
赤坂たん熊ビル/ATビル 2階
物件概要
赤坂たん熊ビル/ATビルのテナント募集中区画
現在、空室がございません。
アクセス
赤坂たん熊ビル/ATビルの物件情報
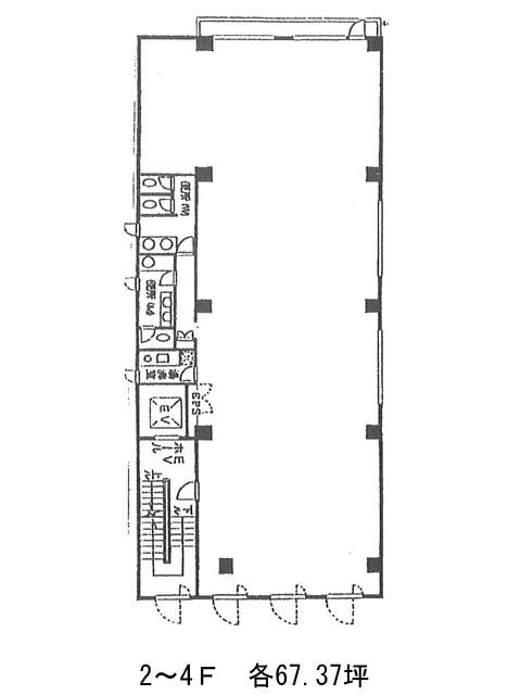
赤坂たん熊ビル/ATビル(港区赤坂)は溜池山王駅(10番出口)から徒歩3分の賃貸オフィスです。外観は全体的にグレーを基調とした色合いで、一見シンプルに見えますが、正方形の窓が1つ1つ縁取られたデザイン性の高いビルです。エントランスホールやエレベーターホールは清潔感があり、落ち着いた空間となっております。ビル内のトイレは男女別となっており、耐震性も新耐震基準であるため、安心です。基準階は約67坪あり、室内は長方形の整形オフィスのため、効率の良いレイアウトが組めそうです。また周辺にはコンビニや飲食店、郵便局などが複数あるためとても利便性が高いです。赤坂たん熊ビル/ATビルは溜池山王駅(10番出口)の他に国会議事堂前駅(5番出口)徒歩5分、赤坂駅(2番出口)徒歩5分で利用も可能です。

