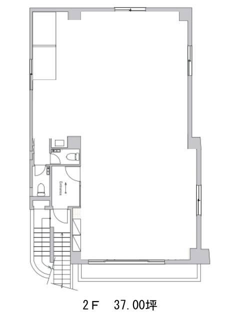
2階は現在募集がありません
GrandStory赤坂 2階
物件概要
GrandStory赤坂のテナント募集中区画
現在、空室がございません。
アクセス
GrandStory赤坂の物件情報
GrandStory赤坂(港区赤坂)は赤坂駅(5b番出口)から徒歩5分の賃貸オフィスです。GrandStory赤坂は赤坂駅(5b番出口)の他に六本木一丁目駅(3番出口)徒歩7分、溜池山王駅(12番出口)徒歩8分で利用も可能です。

