地下1階は現在募集がありません
赤坂進興ビル 地下1階
物件概要
赤坂進興ビルのテナント募集中区画
現在、空室がございません。
アクセス
赤坂進興ビルの物件情報
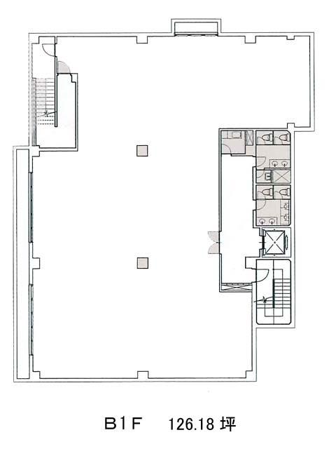
赤坂進興ビル(港区赤坂)は赤坂見附駅(A番出口)から徒歩5分の賃貸オフィスです。1990年竣工の新耐震基準を満たしたオフィスビルです。外観は全体的にグレーを基調とした色合いで、とてもシンプルなデザインとなっております。エントランスやエレベーターホールはとても清潔感があり、落ち着いた空間となっております。室内はほぼ長方形の形をしているため、比較的レイアウトは組みやすいでしょう。ビル内のトイレは男女別となっており、セキュリティは機械警備を導入しているため安心です。また周辺にはコンビニや飲食店、郵便局、銀行などがあるためとても利便性が高いです。赤坂進興ビルは赤坂見附駅(A番出口)の他に永田町駅(7番出口)徒歩8分、赤坂駅(1番出口)徒歩8分で利用も可能です。

