1階は現在募集がありません

赤坂進興ビル 1階

前の写真 次の写真

物件概要

物件番号

133-00635-20

物件名

赤坂進興ビル

所在地

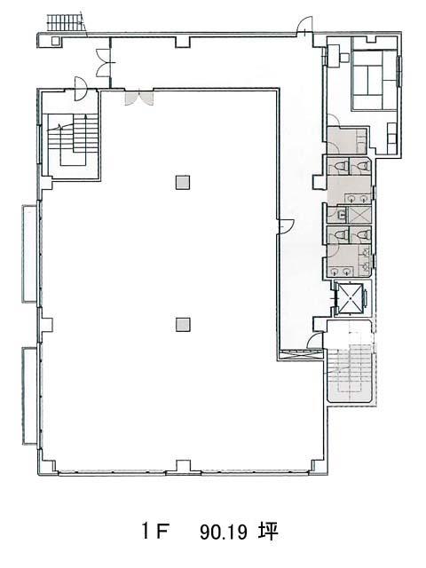
面積

90.19坪

賃料(共益費含)


入居日

募集終了

保証金

礼金

更新料

償却費

竣工

1990年4月

構造

SRC

規模

地上5階/地下1階

トイレ

男女別

空調

個別空調

エレベーター

セキュリティ

駐車場

耐震

新耐震基準

基準階天井高

2390-2800mm

空室延床面積

最寄駅

情報更新日

2024/11/06

赤坂進興ビルのテナント募集中区画

現在、空室がございません。

アクセス

赤坂進興ビルの物件情報

赤坂進興ビル(港区赤坂)は赤坂見附駅(A番出口)から徒歩5分の賃貸オフィスです。
1990年竣工の新耐震基準を満たしたオフィスビルです。外観は全体的にグレーを基調とした色合いで、とてもシンプルなデザインとなっております。エントランスやエレベーターホールはとても清潔感があり、落ち着いた空間となっております。室内はほぼ長方形の形をしているため、比較的レイアウトは組みやすいでしょう。ビル内のトイレは男女別となっており、セキュリティは機械警備を導入しているため安心です。また周辺にはコンビニや飲食店、郵便局、銀行などがあるためとても利便性が高いです。
赤坂進興ビルは赤坂見附駅(A番出口)の他に永田町駅(7番出口)徒歩8分、赤坂駅(1番出口)徒歩8分で利用も可能です。

近隣のエリア・駅から探す