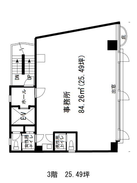
3階は現在募集がありません
赤坂吉田ビル 3階
物件概要
赤坂吉田ビルのテナント募集中区画
現在、空室がございません。
アクセス
赤坂吉田ビルの物件情報
赤坂吉田ビル(港区赤坂)は赤坂見附駅(出口4)から徒歩7分の賃貸オフィスです。赤坂吉田ビルは赤坂見附駅(出口4)の他に永田町駅(7番出口)徒歩8分、赤坂駅(1番出口)徒歩9分で利用も可能です。

