8階は現在募集がありません
ニッセイ溜池山王ビル 8階
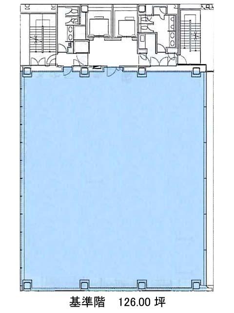
物件概要
ニッセイ溜池山王ビルのテナント募集中区画
現在、空室がございません。
アクセス
ニッセイ溜池山王ビルの物件情報
ニッセイ溜池山王ビル(港区赤坂)は溜池山王駅(9番出口)から徒歩2分の賃貸オフィスです。外堀通り、溜池交差点付近に建つこちらのビルは、白の外壁にダークな色合いのガラス張りがスタイリッシュな外観です。エントランスホールやエレベーターホールは広々としており、高級感を感じられます。ビル内にはOAフロアが備えられており、トイレは男女別となっております。セキュリティは機械警備を導入しています。駐車場もあるため、社用車を使う場合も便利です。また周辺にはコンビニや飲食店、郵便局、銀行などが複数あるためとても利便性が高いです。ニッセイ溜池山王ビルは溜池山王駅(9番出口)の他に国会議事堂前駅(5番出口)徒歩4分、赤坂駅(2番出口)徒歩8分で利用も可能です。

