PMO東新橋 4階
物件概要
PMO東新橋のテナント募集中区画
| 階数 | 面積 | 賃料(共益費含む) | 保証金 | 入居可能日 | 検討リスト | 詳細 |
|---|---|---|---|---|---|---|
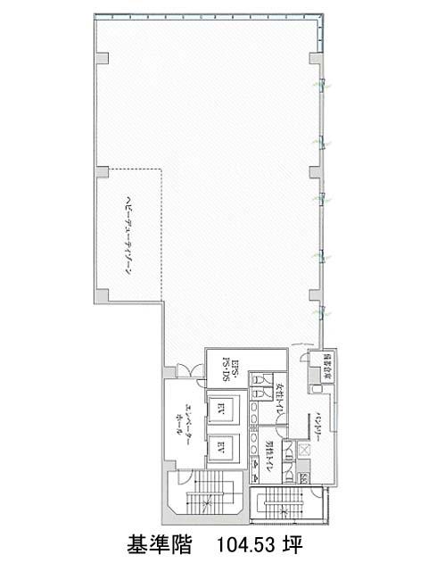
| 4 | 104.52坪 | 応相談(応相談) | 応相談 | 即 |
…新着物件
アクセス
PMO東新橋の物件情報
PMO東新橋(港区東新橋)は御成門駅(A4番出口)から徒歩6分の賃貸オフィスです。2018年竣工の賃貸オフィスビルです。第一京浜沿いの角地で開放感と視認性に優れています。全面ガラス張りの外観は落ち着いた色合いでシックにまとめられており、非常に洗練された印象を受けます。エントランスホールはメタリックな質感をベースに清潔感がありながらも、オレンジ色の腰掛けや温かみのあるライティングで心憎いほどのバランスの良さ。訪れる方にもきっと良い印象を持って頂けると思います。
基準のオフィスフロアは100坪強のサイズで各階1テナント仕様。無柱の室内はフレキシブルなレイアウトが可能でしょう。室内の隅には男女別トイレと給湯室の水回りスペースが設けられています。エレベーターは2基、セキュリティは機械警備を導入済みです。PMO東新橋は御成門駅(A4番出口)の他に大門駅(A2番出口)徒歩6分、汐留駅(8番出口)徒歩7分で利用も可能です。

