7階は現在募集がありません
1フロア募集区画あり

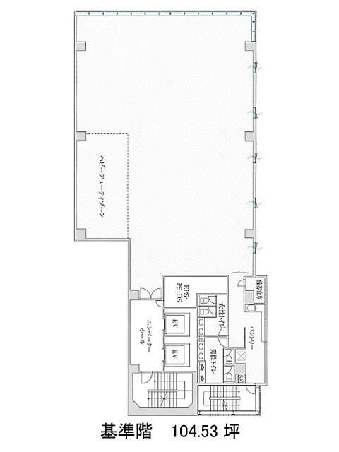
PMO東新橋 7階

前の写真 次の写真

物件概要

物件番号

135-00099-6

物件名

PMO東新橋

所在地

面積

104.52坪

賃料(共益費含)


入居日

募集終了

保証金

礼金

更新料

償却費

竣工

2018年4月

構造

S造

規模

地上9階

トイレ

男女別

空調

個別空調

エレベーター

セキュリティ

駐車場

耐震

新耐震基準

基準階天井高

2800-3000mm

空室延床面積

104.52坪

最寄駅

情報更新日

2026/01/16

PMO東新橋のテナント募集中区画

階数 面積 賃料(共益費含む) 保証金 入居可能日 検討リスト 詳細
4 104.52坪 応相談(応相談) 応相談
…新着物件

アクセス

PMO東新橋の物件情報

PMO東新橋(港区東新橋)は御成門駅(A4番出口)から徒歩6分の賃貸オフィスです。
2018年竣工の賃貸オフィスビルです。第一京浜沿いの角地で開放感と視認性に優れています。全面ガラス張りの外観は落ち着いた色合いでシックにまとめられており、非常に洗練された印象を受けます。エントランスホールはメタリックな質感をベースに清潔感がありながらも、オレンジ色の腰掛けや温かみのあるライティングで心憎いほどのバランスの良さ。訪れる方にもきっと良い印象を持って頂けると思います。
基準のオフィスフロアは100坪強のサイズで各階1テナント仕様。無柱の室内はフレキシブルなレイアウトが可能でしょう。室内の隅には男女別トイレと給湯室の水回りスペースが設けられています。エレベーターは2基、セキュリティは機械警備を導入済みです。
PMO東新橋は御成門駅(A4番出口)の他に大門駅(A2番出口)徒歩6分、汐留駅(8番出口)徒歩7分で利用も可能です。

近隣のエリア・駅から探す