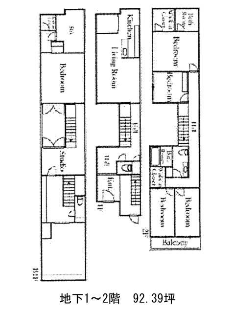
南青山7丁目戸建 B1-2F
物件概要
南青山7丁目戸建のテナント募集中区画
| 階数 | 面積 | 賃料(共益費含む) | 保証金 | 入居可能日 | 検討リスト | 詳細 |
|---|---|---|---|---|---|---|
| B1-2F | 92.39坪 | 1,650,000円/月(17,859円/坪) | 750万円 | 即 |
…新着物件
アクセス
南青山7丁目戸建の物件情報
南青山7丁目戸建(港区南青山)は表参道駅(B1番出口)から徒歩13分の賃貸オフィスです。駅から距離はあるものの、表参道・広尾・渋谷の3駅が利用可能な南青山エリアに立地する一棟貸し物件です。地下1階〜地上2階構成で、約92坪とボリュームのあるつくり。住居兼事務所としても利用しやすいSOHOタイプとなっており、レイアウトも居住性に配慮されています。
駅からやや距離があるものの、敷地内には駐車スペースが確保されているため、車移動が中心の方には好相性。静かな住宅街の一角に位置しており、落ち着いた環境を求める企業や個人事業主にとっては魅力的なロケーションです。詳細条件については都度ご確認ください。南青山7丁目戸建は表参道駅(B1番出口)の他に広尾駅(4番出口)徒歩13分で利用も可能です。

