VORT浜松町Ⅲ 10階
物件概要
物件番号
141-00276-80物件名
VORT浜松町Ⅲ所在地
- 東京都港区浜松町2-1-12
- アクセスマップ
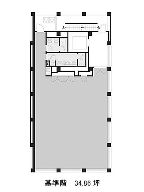
面積
34.63坪賃料(共益費含)
:応相談応相談
入居日
即保証金
応相談礼金
1ケ月更新料
新1ケ月償却費
なし竣工
2012年3月構造
S造規模
地上10階トイレ
男女別空調
個別空調エレベーター
有セキュリティ
有駐車場
無耐震
新耐震基準基準階天井高
2650mm空室延床面積
34.63坪情報更新日
2025/11/26VORT浜松町Ⅲのテナント募集中区画
| 階数 | 面積 | 賃料(共益費含む) | 保証金 | 入居可能日 | 検討リスト | 詳細 |
|---|---|---|---|---|---|---|
| 10 | 34.63坪 | 応相談(応相談) | 応相談 | 即 |
…新着物件
アクセス
VORT浜松町Ⅲの物件情報
VORT浜松町Ⅲ(港区浜松町)は大門駅(A1番出口)から徒歩2分の賃貸オフィスです。VORT浜松町Ⅲは大門駅(A1番出口)の他に浜松町駅(北口)徒歩5分、モノレール浜松町駅(中央口)徒歩6分で利用も可能です。

