8階 802は現在募集がありません
1フロア募集区画あり

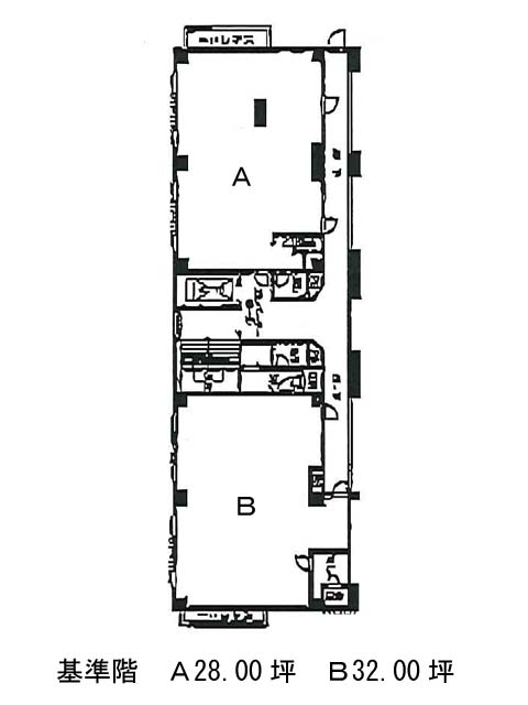
落合麻布台ビル 8階 802

前の写真 次の写真

物件概要

物件番号

147-00155-120

物件名

落合麻布台ビル

所在地

面積

28.00坪

賃料(共益費含)


入居日

募集終了

保証金

礼金

更新料

償却費

竣工

1978年11月

構造

RC

規模

地上10階

トイレ

不明

空調

個別空調

エレベーター

セキュリティ

駐車場

耐震

旧耐震基準

基準階天井高

空室延床面積

28.00坪

最寄駅

情報更新日

2025/10/11

落合麻布台ビルのテナント募集中区画

階数 面積 賃料(共益費含む) 保証金 入居可能日 検討リスト 詳細
6 28.00坪 462,000円/月(16,500円/坪) 277万円
…新着物件

アクセス

落合麻布台ビルの物件情報

落合麻布台ビル(港区六本木)は六本木一丁目駅(2番出口)から徒歩1分の賃貸オフィスです。
落合麻布台ビルは六本木一丁目駅(2番出口)の他に溜池山王駅(13番出口)徒歩8分、神谷町駅(2番出口)徒歩9分で利用も可能です。

近隣のエリア・駅から探す