落合麻布台ビル 6階 A
物件概要
物件番号
147-00155-80物件名
落合麻布台ビル所在地
- 東京都港区六本木1-7-28
- アクセスマップ
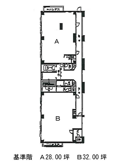
面積
28.00坪賃料(共益費含)
月額462,000円(16,500円/坪)
入居日
即保証金
2,772,000円礼金
1ケ月更新料
新1ケ月償却費
なし竣工
1978年11月構造
RC規模
地上10階トイレ
男女共用空調
個別空調エレベーター
有セキュリティ
駐車場
無耐震
旧耐震基準基準階天井高
空室延床面積
28.00坪情報更新日
2025/10/11落合麻布台ビルのテナント募集中区画
| 階数 | 面積 | 賃料(共益費含む) | 保証金 | 入居可能日 | 検討リスト | 詳細 |
|---|---|---|---|---|---|---|
| 6 | 28.00坪 | 462,000円/月(16,500円/坪) | 277万円 | 即 |
…新着物件
アクセス
落合麻布台ビルの物件情報
落合麻布台ビル(港区六本木)は六本木一丁目駅(2番出口)から徒歩1分の賃貸オフィスです。落合麻布台ビルは六本木一丁目駅(2番出口)の他に溜池山王駅(13番出口)徒歩8分、神谷町駅(2番出口)徒歩9分で利用も可能です。

