落合麻布台ビルのテナント募集中区画
| 階数 | 面積 | 賃料(共益費含む) | 保証金 | 入居可能日 | 検討リスト | 詳細 |
|---|---|---|---|---|---|---|
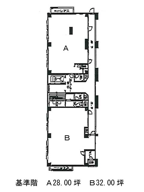
| 6 | 28.00坪 | 462,000円/月(16,500円/坪) | 277万円 | 即 |
…新着物件
アクセス
落合麻布台ビルの物件情報
落合麻布台ビル(港区六本木)は六本木一丁目駅(2番出口)から徒歩1分の賃貸オフィスです。落合麻布台ビルは六本木一丁目駅(2番出口)の他に溜池山王駅(13番出口)徒歩8分、神谷町駅(2番出口)徒歩9分で利用も可能です。

