TRUST VALUE 六本木1丁目 9階
物件概要
物件番号
147-00356-90物件名
TRUST VALUE 六本木1丁目所在地
- 東京都港区六本木2-4-9
- アクセスマップ
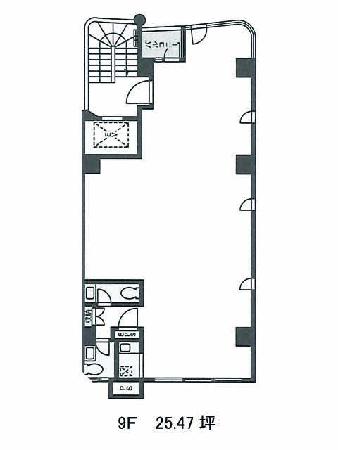
面積
25.47坪賃料(共益費含)
月額784,476円(30,800円/坪)
入居日
即保証金
1,986,660円礼金
なし更新料
新1ケ月償却費
なし竣工
1983年6月構造
SRC規模
地上10階トイレ
男女別空調
個別空調エレベーター
有セキュリティ
有駐車場
無耐震
新耐震基準基準階天井高
2370mm空室延床面積
25.47坪情報更新日
2025/10/28TRUST VALUE 六本木1丁目のテナント募集中区画
| 階数 | 面積 | 賃料(共益費含む) | 保証金 | 入居可能日 | 検討リスト | 詳細 |
|---|---|---|---|---|---|---|
| 9 | 25.47坪 | 784,476円/月(30,800円/坪) | 198万円 | 即 |
…新着物件
アクセス
TRUST VALUE 六本木1丁目の物件情報
TRUST VALUE 六本木1丁目(港区六本木)は六本木一丁目駅(出口)から徒歩4分の賃貸オフィスです。TRUST VALUE 六本木1丁目は六本木一丁目駅(出口)の他に六本木駅(6番出口)徒歩6分、溜池山王駅(13番出口)徒歩9分で利用も可能です。

