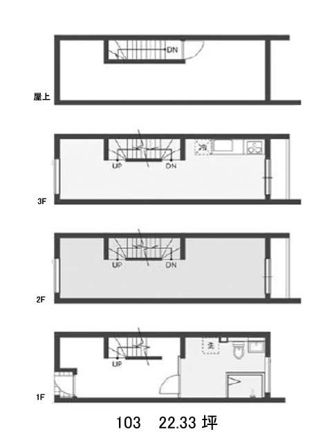
1階 103は現在募集がありません
メゾンドミエル恵比寿 1階 103
物件概要
メゾンドミエル恵比寿のテナント募集中区画
現在、空室がございません。
アクセス
メゾンドミエル恵比寿の物件情報
メゾンドミエル恵比寿(渋谷区恵比寿)は広尾駅(2番出口)から徒歩13分の賃貸オフィスです。メゾンドミエル恵比寿は広尾駅(2番出口)の他に恵比寿駅(東口)徒歩14分、白金台駅(1番出口)徒歩14分で利用も可能です。

