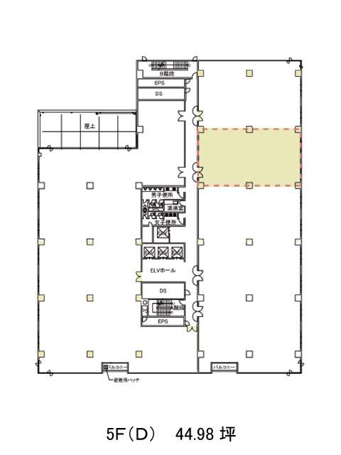
5階 5Dは現在募集がありません
ウノサワ東急ビル 5階 5D
物件概要
ウノサワ東急ビルのテナント募集中区画
現在、空室がございません。
アクセス
ウノサワ東急ビルの物件情報
ウノサワ東急ビル(渋谷区恵比寿)は恵比寿駅(東口)から徒歩5分の賃貸オフィスです。1984年竣工、地上7階地下1階建のビルです。白い外壁に正方形の窓が並び、すっきりとした外観をしています。基準階面積は約637坪。広々としたエントランスは屋根付きの車寄せも完備しています。設備仕様として、EV4基・駐車場・OAフロア・個別空調・男女別トイレがあります。セキュリティとして機械警備が導入されオフィスは24時間使用可能です。2008年にリニューアルが済んでいます。ウノサワ東急ビルは恵比寿駅(東口)の他に広尾駅(2番出口)徒歩15分、代官山駅(東口)徒歩15分で利用も可能です。

