3階は現在募集がありません
1フロア募集区画あり

ASKビル 3階

前の写真 次の写真

物件概要

物件番号

159-00006-20

物件名

ASKビル

所在地

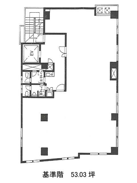
面積

53.03坪

賃料(共益費含)


入居日

募集終了

保証金

礼金

更新料

償却費

竣工

1993年1月

構造

SRC

規模

地上8階

トイレ

男女別

空調

個別空調

エレベーター

セキュリティ

駐車場

耐震

新耐震基準

基準階天井高

2500mm

空室延床面積

53.03坪

最寄駅

情報更新日

2025/10/21

ASKビルのテナント募集中区画

階数 面積 賃料(共益費含む) 保証金 入居可能日 検討リスト 詳細
4 53.03坪 1,343,100円/月(25,328円/坪) 1,061万円
…新着物件

アクセス

ASKビルの物件情報

ASKビル(渋谷区恵比寿)は恵比寿駅(東口)から徒歩8分の賃貸オフィスです。
ASKビルは恵比寿駅(東口)の他に広尾駅(2番出口)徒歩12分で利用も可能です。

近隣のエリア・駅から探す