5階は現在募集がありません
NAGAHAMAビル 5階
物件概要
NAGAHAMAビルのテナント募集中区画
現在、空室がございません。
アクセス
NAGAHAMAビルの物件情報
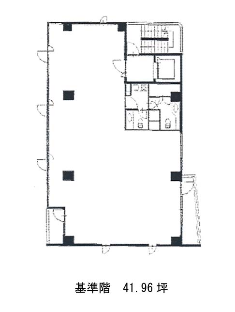
NAGAHAMAビル(渋谷区恵比寿)は恵比寿駅(東口)から徒歩8分の賃貸オフィスです。1991年竣工、地上8階建ての鉄骨鉄筋コンクリート造です。1階部分は駐車スペースになっています。貸室はL字型に近く、柱は窓側に寄っていますので、レイアウトの自由度は比較的高いでしょう。また開閉式の窓が複数設置されていますので、風通しの良い環境です。主な設備はエレベーター1基、個別空調、OAフロア、光ケーブル等です。ビルの1階は駐車スペースになっていますので、車でのアクセスも良好です。徒歩圏内には郵便局がありますので、ちょっとした買い物や各種手続きがスムーズに行えます。また、当物件が面する新橋グルメストリートには、その名の通り多くの飲食店が営業していますので、ランチタイムが楽しみになりそうです。NAGAHAMAビルは恵比寿駅(東口)の他に広尾駅(2番出口)徒歩12分で利用も可能です。

