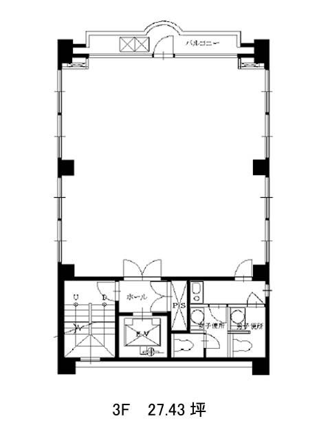
3階は現在募集がありません
ハーモニックプレイス 3階
物件概要
ハーモニックプレイスのテナント募集中区画
現在、空室がございません。
アクセス
ハーモニックプレイスの物件情報
ハーモニックプレイス(渋谷区恵比寿南)は恵比寿駅(5番出口)から徒歩4分の賃貸オフィスです。ハーモニックプレイスは恵比寿駅(5番出口)の他に代官山駅(東口)徒歩10分、中目黒駅(出口)徒歩14分で利用も可能です。

