3階は現在募集がありません
プライム広尾ビル 3階
物件概要
プライム広尾ビルのテナント募集中区画
現在、空室がございません。
アクセス
プライム広尾ビルの物件情報
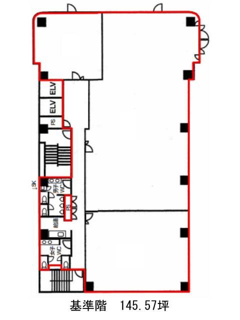
プライム広尾ビル(渋谷区広尾)は広尾駅(2番出口)から徒歩5分の賃貸オフィスです。1994年竣工、地上6階建てです。明治通りを少し入った場所にあります。優しいブラウンの石張りからなる上品な外観が、広尾の街並みに似合います。貸室の広さや形は区画によって異なりますが、どの区画にも柱がなく、レイアウトの自由度は高いでしょう。また、採光が良く天井が高めにつくられているため、お仕事が快適に進められそうです。設備面はエレベーターが2基、個別空調、OAフロア等です。併設の駐車場には12台まで収容可能です。周辺は飲食店が充実しているうえ、金融機関や郵便局も近くにあるため、オフィスワーカーにとって理想的な立地と言えるでしょう。プライム広尾ビルは広尾駅(2番出口)の他に恵比寿駅(東口)徒歩15分で利用も可能です。

