10階 10Aは現在募集がありません
3フロア募集区画あり

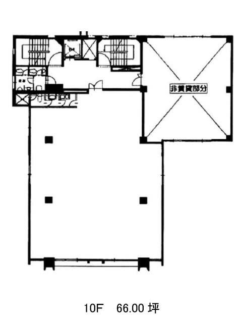
広尾オフィスビル 10階 10A

前の写真 次の写真

物件概要

物件番号

163-00009-90

物件名

広尾オフィスビル

所在地

面積

66.00坪

賃料(共益費含)


入居日

募集終了

保証金

礼金

更新料

償却費

竣工

1971年7月

構造

SRC

規模

地上11階

トイレ

男女別

空調

個別空調

エレベーター

セキュリティ

駐車場

耐震

耐震補強済み

基準階天井高

2450mm

空室延床面積

288.00坪

最寄駅

情報更新日

2025/11/27

広尾オフィスビルのテナント募集中区画

階数 面積 賃料(共益費含む) 保証金 入居可能日 検討リスト 詳細
4 96.00坪 3,168,000円/月(33,000円/坪) 応相談
6 96.00坪 2,851,200円/月(29,700円/坪) 応相談
7 96.00坪 3,484,800円/月(36,300円/坪) 応相談 2026年1月下旬
…新着物件

アクセス

広尾オフィスビルの物件情報

広尾オフィスビル(渋谷区広尾)は恵比寿駅(1番出口)から徒歩6分の賃貸オフィスです。
1971年竣工、地上11階建SRC造のビルです。耐震補強工事実施済です。茶色と白の外壁で温かみのある外観をしています。EV1基・個別空調・OAフロア・貸室外の男女別トイレといった設備仕様をしています。基準階面積は96.00坪。貸室への出入口は複数あり、動線の確保がしやすいでしょう。1階に飲食店が入り、目印としてわかりやすいでしょう。白の天然石で明るく高級感のあるエントランスです。管理状態が良好な物件です。
広尾オフィスビルは恵比寿駅(1番出口)の他に代官山駅(東口)徒歩13分、広尾駅(2番出口)徒歩13分で利用も可能です。

近隣のエリア・駅から探す