7階は現在募集がありません
あいおいニッセイ同和損保 新宿ビル 7階
物件概要
物件番号
177-00006-20物件名
あいおいニッセイ同和損保 新宿ビル所在地
- 東京都渋谷区代々木3-25-3
- アクセスマップ
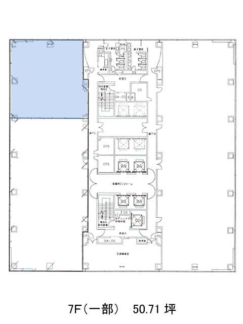
面積
50.71坪賃料(共益費含)
−入居日
募集終了保証金
−礼金
−更新料
−償却費
−竣工
1989年4月構造
SRC規模
地上24階/地下4階トイレ
男女別空調
セントラルエレベーター
有セキュリティ
有駐車場
有耐震
新耐震基準基準階天井高
2700-3150mm空室延床面積
−情報更新日
2025/06/10あいおいニッセイ同和損保 新宿ビルのテナント募集中区画
現在、空室がございません。
アクセス
あいおいニッセイ同和損保 新宿ビルの物件情報
あいおいニッセイ同和損保 新宿ビル(渋谷区代々木)は新宿駅(8番出口)から徒歩7分の賃貸オフィスです。甲州街道に面する地上24階建てです。新耐震基準を満たす構造で、4階から上が各フロア300坪の大型オフィスとなっています。その建物の迫力とミラーガラスの美しい外観によって視認性抜群です。吹き抜けのエントランスは明るくゆったりとした雰囲気で、来訪時などに便利なベンチが設けられています。中央の共用スペースで左右対称に区切られた貸室は長方形の整形無柱空間となっており、3面にわたる窓からの採光・眺望にも優れています。またOAフロア、個別空調、室外の男女別トイレ、併設駐車場、貸会議室等、快適なお仕事環境をかなえる充実の設備面もポイントです。ビルの1階にはカフェが営業中で、近くの郵便局、コンビニ、バス停なども利用できますので、事務作業や休憩時にも便利です。あいおいニッセイ同和損保 新宿ビルは新宿駅(8番出口)の他に初台駅(東口)徒歩8分、都庁前駅(A4番出口)徒歩9分で利用も可能です。

