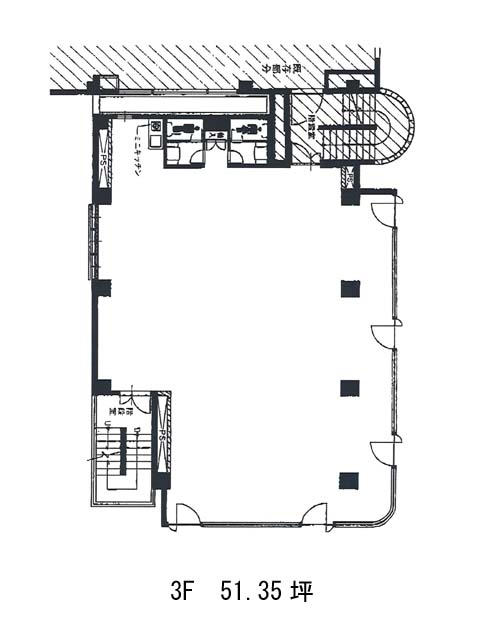
3階は現在募集がありません
スクエア初台ビル 3階
物件概要
スクエア初台ビルのテナント募集中区画
現在、空室がございません。
アクセス
スクエア初台ビルの物件情報
スクエア初台ビル(渋谷区本町)は初台駅(出口2)から徒歩5分の賃貸オフィスです。1992年竣工、地上3階建て。外観は光沢のあるブラウンの石彫で、交差点角地にあるため、視認性良好の物件です。貸室までの通路と階段はコンクリート打ち放しのスタイリッシュなデザインです。間取りや大きさはフロアによって異なりますが、給湯や男女別トイレなどの設備が一箇所にまとまっていますので、使い勝手が良さそうです。また、開閉可能な帯状の窓から十分な採光と風通しが期待できます。当物件は24時間使用可能で、空調は個別空調、セキュリティは機械警備によって安全を管理しています。また、郵便局や銀行から近く、初台駅周辺や山手通り方面に飲食店が充実している利便性の高い立地です。スクエア初台ビルは初台駅(出口2)の他に西新宿五丁目駅(A2番出口)徒歩12分、幡ヶ谷駅(北口)徒歩15分で利用も可能です。

