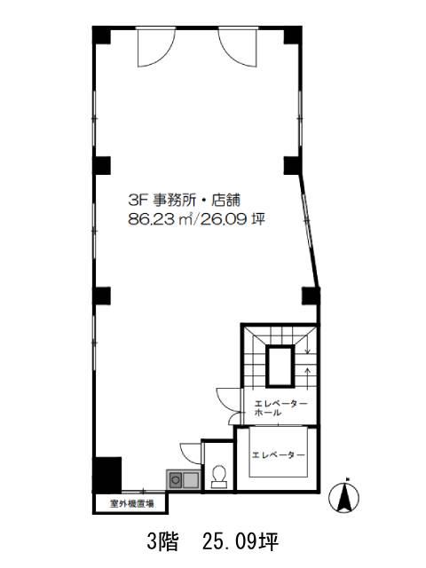
3階は現在募集がありません
佐伯ビル 3階
物件概要
佐伯ビルのテナント募集中区画
現在、空室がございません。
アクセス
佐伯ビルの物件情報
佐伯ビル(新宿区下落合)は目白駅(出口)から徒歩5分の賃貸オフィスです。佐伯ビルは目白駅(出口)の他に雑司が谷駅(2番出口)徒歩14分、池袋駅(2b番出口)徒歩14分で利用も可能です。

