3階は現在募集がありません
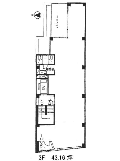
砂原ビル 3階
物件概要
砂原ビルのテナント募集中区画
現在、空室がございません。
アクセス
砂原ビルの物件情報
砂原ビル(新宿区高田馬場)は高田馬場駅(戸山口)から徒歩5分の賃貸オフィスです。砂原ビルは高田馬場駅(戸山口)の他に西早稲田駅(2番出口)徒歩7分で利用も可能です。

