4階は現在募集がありません

NTビル 4階

前の写真 次の写真

物件概要

物件番号

202-00190-13

物件名

NTビル

所在地

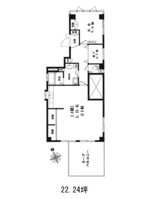
面積

22.24坪

賃料(共益費含)


入居日

募集終了

保証金

礼金

更新料

償却費

竣工

1992年

構造

RC

規模

地上5階

トイレ

男女共用

空調

個別空調

エレベーター

セキュリティ

駐車場

耐震

新耐震基準

基準階天井高

空室延床面積

最寄駅

情報更新日

2024/03/27

NTビルのテナント募集中区画

現在、空室がございません。

アクセス

NTビルの物件情報

NTビル(新宿区高田馬場)は高田馬場駅(1番出口)から徒歩4分の賃貸オフィスです。
NTビルは高田馬場駅(1番出口)の他に下落合駅(南口)徒歩12分、西早稲田駅(2番出口)徒歩15分で利用も可能です。

近隣のエリア・駅から探す