5階は現在募集がありません
大樹生命高田馬場ビル 5階
物件概要
大樹生命高田馬場ビルのテナント募集中区画
現在、空室がございません。
アクセス
大樹生命高田馬場ビルの物件情報
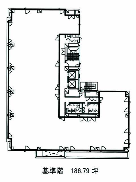
大樹生命高田馬場ビル(新宿区高田馬場)は高田馬場駅(7番出口)から徒歩4分の賃貸オフィスです。地上8階建て、基準階は約186坪です。幅広の四角い建物を、白いタイルと大きなガラスで覆った外観からは、清潔感や安心感が感じられます。エントランスにも白いタイルを使用した、明るく広々としたつくりです。室内はL字型に近い無柱空間となっていますので、比較的レイアウトがしやすいでしょう。設備面は、エレベーター、個別空調、男女別トイレ、駐車場が備えられています。1階ではドラッグストアが営業していますので、ちょっとしたお買い物に便利です。活気あふれる早稲田通りに面していますので、ランチタイムや買い物に困ることはないでしょう。大樹生命高田馬場ビルは高田馬場駅(7番出口)の他に西早稲田駅(1番出口)徒歩5分、面影橋駅(停留所)徒歩9分で利用も可能です。

