4階は現在募集がありません
東ビル 4階
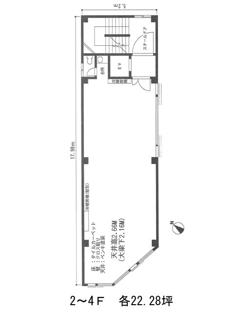
物件概要
東ビルのテナント募集中区画
現在、空室がございません。
アクセス
東ビルの物件情報
東ビル(新宿区市谷田町)は市ヶ谷駅(5番出口)から徒歩2分の賃貸オフィスです。東ビルは市ヶ谷駅(5番出口)の他に飯田橋駅(B3番出口)徒歩11分、牛込神楽坂駅(A1番出口)徒歩12分で利用も可能です。

