5階は現在募集がありません
HORIZON1ビル 5階
物件概要
HORIZON1ビルのテナント募集中区画
現在、空室がございません。
アクセス
HORIZON1ビルの物件情報
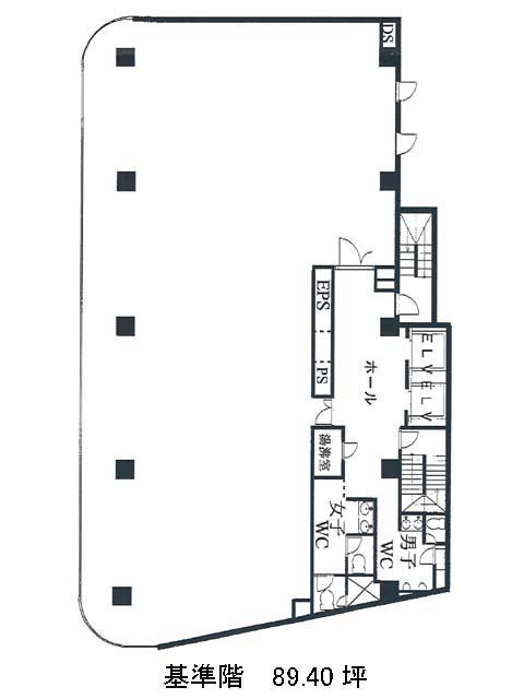
HORIZON1ビル(新宿区西早稲田)は学習院下駅(停留所)から徒歩5分の賃貸オフィスです。地上10階建て、白いタイル張りに帯状の窓が縞模様をつくる外観は、清潔感を感じさせます。幅広の明治通りに面していますので、周辺は交通量が多く、視認性、採光は良好でしょう。エントランスホールは大理石を用いたお洒落なモノトーンの空間です。室内は、窓の近くに柱のある場合がありますが、執務空間の邪魔にはなりにくく、レイアウトは比較的しやすいでしょう。設備面は、エレベーター2基、光ケーブル、個別空調が備えられ、車をご利用の際は併設の機械式駐車場が便利です。また、セキュリティについては機械警備と有人警備が併用されていますので、安全性に優れています。HORIZON1ビルは学習院下駅(停留所)の他に面影橋駅(停留所)徒歩5分、西早稲田駅(1番出口)徒歩7分で利用も可能です。

