6階は現在募集がありません
グローバル新神楽坂ビル 6階
物件概要
グローバル新神楽坂ビルのテナント募集中区画
現在、空室がございません。
アクセス
グローバル新神楽坂ビルの物件情報
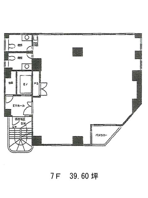
グローバル新神楽坂ビル(新宿区箪笥町)は牛込神楽坂駅(A1番出口)から徒歩1分の賃貸オフィスです。大久保通り沿いにある、12階建てのビルです。地下鉄の出入り口からすぐなので、天候の悪い日に便利です。1階にレストランがあり、隣のビルに京王ストアがあります。間取りは複数あり、ワンフロア約26坪から40坪弱の広さがあります。室内に給湯設備とトイレが設置されています。主に男女別トイレになっていますが、共用になっている部屋もあるので、空き状況と共にお問い合わせください。グローバル新神楽坂ビルは牛込神楽坂駅(A1番出口)の他に神楽坂駅(1番出口)徒歩8分、飯田橋駅(B3番出口)徒歩11分で利用も可能です。

