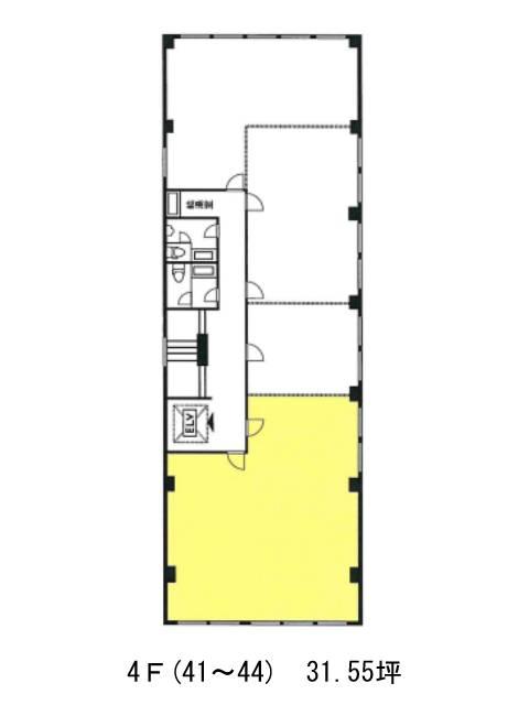
4階 41-44は現在募集がありません
喜助お茶の水ビル 4階 41-44
物件概要
喜助お茶の水ビルのテナント募集中区画
現在、空室がございません。
アクセス
喜助お茶の水ビルの物件情報
喜助お茶の水ビル(千代田区外神田)は御茶ノ水駅(聖橋口)から徒歩6分の賃貸オフィスです。喜助お茶の水ビルは御茶ノ水駅(聖橋口)の他に新御茶ノ水駅(B1番出口)徒歩6分、秋葉原駅(電気街口)徒歩7分で利用も可能です。

