KM千代田ビルのテナント募集中区画
| 階数 | 面積 | 賃料(共益費含む) | 保証金 | 入居可能日 | 検討リスト | 詳細 |
|---|---|---|---|---|---|---|
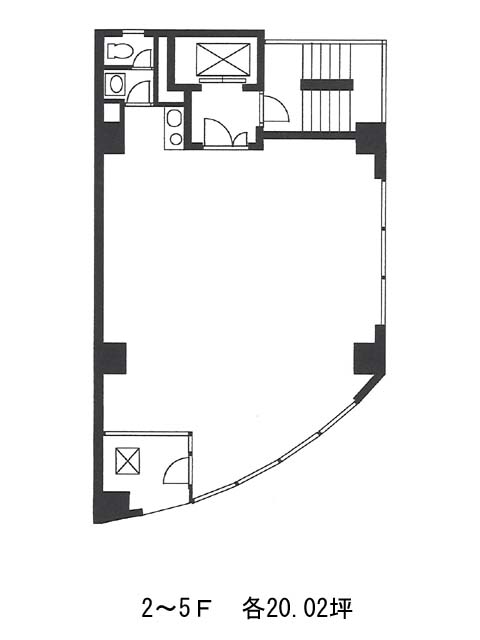
| 5 | 20.02坪 | 286,200円/月(14,296円/坪) | 156万円 | 即 |
…新着物件
アクセス
KM千代田ビルの物件情報
KM千代田ビル(千代田区岩本町)は小伝馬町駅(出口1)から徒歩3分の賃貸オフィスです。KM千代田ビルは小伝馬町駅(出口1)の他に馬喰町駅(2番出口)徒歩5分、岩本町駅(A4番出口)徒歩7分で利用も可能です。

