3階は現在募集がありません
ハーブ神田ビル 3階
物件概要
ハーブ神田ビルのテナント募集中区画
現在、空室がございません。
アクセス
ハーブ神田ビルの物件情報
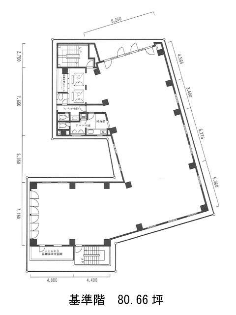
ハーブ神田ビル(千代田区岩本町)は岩本町駅(A5番出口)から徒歩4分の賃貸オフィスです。1997年竣工で地上11階建てのビルです。フリーアクセス床となっているので、配線しやすいフロアです。耐震は、新耐震基準に適合しており、トイレは男女別の設置となっています。ビルの外観は白を基調として落ち着いた雰囲気です。エレベーターを降りた直後に貸室になっているダイレクトイン形式のフロアでございます。駐車場のご利用も可能です。徒歩圏内にコンビニエンスストアや郵便局、スーパーマーケットがございます。ハーブ神田ビルは岩本町駅(A5番出口)の他に小伝馬町駅(出口2)徒歩5分、秋葉原駅(4番出口)徒歩7分で利用も可能です。

