3階は現在募集がありません
イトーピア岩本町1丁目ビル 3階
物件概要
イトーピア岩本町1丁目ビルのテナント募集中区画
現在、空室がございません。
アクセス
イトーピア岩本町1丁目ビルの物件情報
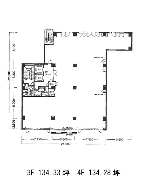
イトーピア岩本町1丁目ビル(千代田区岩本町)は小伝馬町駅(出口2)から徒歩4分の賃貸オフィスです。1991年竣工、地上9階地下1階建てSRC造のビルです。アーチ状の入口が特徴的で、ご案内時の目印になるでしょう。EV2基・駐車場・非常階段2箇所・機械警備・OAフロア・貸室外の男女別トイレといった設備仕様をしています。空調は個別空調を導入しています。窓面が多く、室内に十分な採光が取り入れられるでしょう。エントランスは高級感があり、ゆったりと来客をお迎えできるでしょう。イトーピア岩本町1丁目ビルは小伝馬町駅(出口2)の他に馬喰町駅(2番出口)徒歩6分、岩本町駅(A4番出口)徒歩7分で利用も可能です。

