5階は現在募集がありません
1フロア募集区画あり

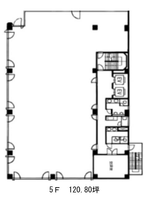
紀繁(きのしげ)ビル 5階

前の写真 次の写真

物件概要

物件番号

383-00065-50

物件名

紀繁(きのしげ)ビル

所在地

面積

120.80坪

賃料(共益費含)


入居日

募集終了

保証金

礼金

更新料

償却費

竣工

1989年3月

構造

S造

規模

地上7階/地下1階

トイレ

男女別

空調

個別空調

エレベーター

セキュリティ

駐車場

耐震

新耐震基準

基準階天井高

空室延床面積

120.58坪

最寄駅

情報更新日

2025/10/28

紀繁(きのしげ)ビルのテナント募集中区画

階数 面積 賃料(共益費含む) 保証金 入居可能日 検討リスト 詳細
2 120.58坪 2,387,484円/月(19,800円/坪) 2,170万円 2026年1月
…新着物件

アクセス

紀繁(きのしげ)ビルの物件情報

紀繁(きのしげ)ビル(千代田区岩本町)は小伝馬町駅(出口1)から徒歩4分の賃貸オフィスです。
1989年竣工、地上7階地下1階S造のビルです。新耐震基準に適合しています。ミラーガラス張りのスタイリッシュな外観で、築年数を感じさせない風格をしています。室内は支柱のでっぱりが少なく、デスクや機器のレイアウトがしやすいでしょう。EV2基・駐車場・非常階段2箇所・個別空調・OAフロア・貸室外の男女別トイレ・給湯室といった設備仕様がそろいます。セキュリティとして機械警備が導入されています。二面採光で、明るい室内になるでしょう。
紀繁(きのしげ)ビルは小伝馬町駅(出口1)の他に馬喰町駅(2番出口)徒歩5分、岩本町駅(A4番出口)徒歩7分で利用も可能です。

近隣のエリア・駅から探す