紀繁(きのしげ)ビルのテナント募集中区画
| 階数 | 面積 | 賃料(共益費含む) | 保証金 | 入居可能日 | 検討リスト | 詳細 |
|---|---|---|---|---|---|---|
| 2 | 120.58坪 | 2,387,484円/月(19,800円/坪) | 2,170万円 | 2026年1月 |
…新着物件
アクセス
紀繁(きのしげ)ビルの物件情報
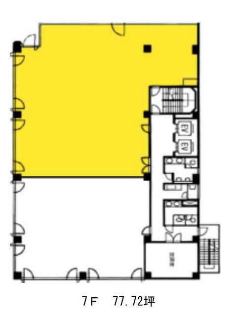
紀繁(きのしげ)ビル(千代田区岩本町)は小伝馬町駅(出口1)から徒歩4分の賃貸オフィスです。1989年竣工、地上7階地下1階S造のビルです。新耐震基準に適合しています。ミラーガラス張りのスタイリッシュな外観で、築年数を感じさせない風格をしています。室内は支柱のでっぱりが少なく、デスクや機器のレイアウトがしやすいでしょう。EV2基・駐車場・非常階段2箇所・個別空調・OAフロア・貸室外の男女別トイレ・給湯室といった設備仕様がそろいます。セキュリティとして機械警備が導入されています。二面採光で、明るい室内になるでしょう。紀繁(きのしげ)ビルは小伝馬町駅(出口1)の他に馬喰町駅(2番出口)徒歩5分、岩本町駅(A4番出口)徒歩7分で利用も可能です。

