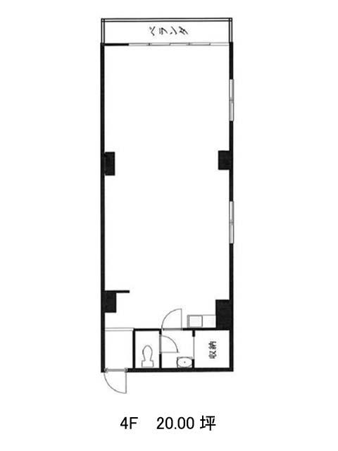
4階 402は現在募集がありません
ニュー九段マンション 4階 402
物件概要
ニュー九段マンションのテナント募集中区画
現在、空室がございません。
アクセス
ニュー九段マンションの物件情報
ニュー九段マンション(千代田区九段南)は市ヶ谷駅(A3番出口)から徒歩2分の賃貸オフィスです。ニュー九段マンションは市ヶ谷駅(A3番出口)の他に半蔵門駅(5番出口)徒歩10分、麹町駅(6番出口)徒歩12分で利用も可能です。

