9階は現在募集がありません
第2星光ビル 9階


物件概要
第2星光ビルのテナント募集中区画
現在、空室がございません。
アクセス
第2星光ビルの物件情報
第2星光ビル(千代田区九段北)は市ヶ谷駅(A1番出口)から徒歩2分の賃貸オフィスです。
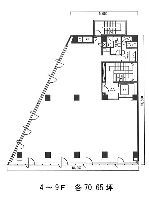
1977年竣工、地上10階建てSRC造のビルです。白い外壁にガラス窓が並び、すっきりとした外観をしています。基準階坪数は70.65坪。ワンフロア、ワンテナントでプライバシー性の高い執務ができるでしょう。設備仕様として、EV1基・給湯スペース・個別空調・光ケーブル対応・OAフロア・男女別トイレがそろいます。セキュリティとして機械警備が導入されています。二面採光で明るい室内になるでしょう。
第2星光ビルは市ヶ谷駅(A1番出口)の他に麹町駅(6番出口)徒歩9分、半蔵門駅(5番出口)徒歩12分で利用も可能です。