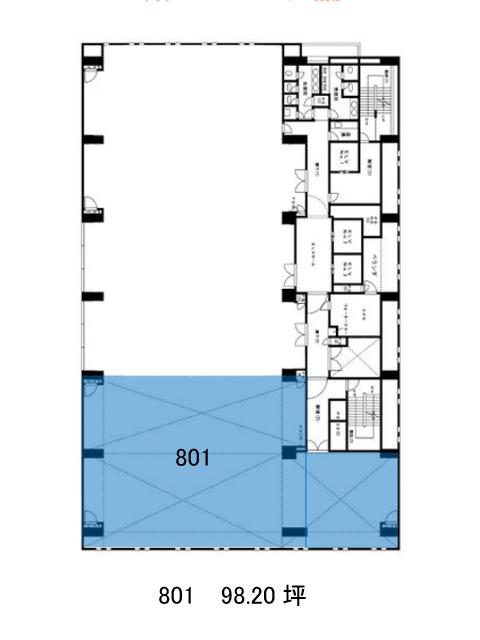
8階 801は現在募集がありません
飛栄九段北ビル 8階 801
物件概要
飛栄九段北ビルのテナント募集中区画
現在、空室がございません。
アクセス
飛栄九段北ビルの物件情報
飛栄九段北ビル(千代田区九段北)は市ヶ谷駅(A4番出口)から徒歩3分の賃貸オフィスです。
1988年竣工され、地下1階・地上11階建てのベージュのタイルを使った、落ち着いた雰囲気のオフィスビルです。白で統一されたエントランスは清潔感が漂い、2基設置されたシルバーのエレベーターがスタイリッシュで高級感のある空間に仕上げています。基準階坪数は約250坪、室内は無柱空間・OAフロア床仕様となっている為、使い勝手は良く、室内レイアウトはしやすいでしょう。また個別空調・機械式警備を完備、男女別トイレと給湯室はエレベーターホール側に設置されています。数度に渡りリニューアル工事を実施しており、新耐震基準に適合しておりますので、安心して入居して頂けます。飲食店が豊富な靖国通り沿いに立地しているので、ランチタイムはお店選びに苦労しないでしょう。
飛栄九段北ビルは市ヶ谷駅(A4番出口)の他に半蔵門駅(5番出口)徒歩11分、九段下駅(1番出口)徒歩12分で利用も可能です。

