マルキビルディング 5階
物件概要
物件番号
389-00065-40物件名
マルキビルディング所在地
- 東京都千代田区神田三崎町3-10-18
- アクセスマップ
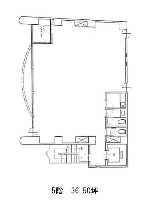
面積
36.50坪賃料(共益費含)
月額562,100円(15,400円/坪)
入居日
即保証金
3,066,000円礼金
なし更新料
新1ケ月償却費
1ケ月竣工
1992年4月構造
SRC規模
地上7階/地下1階トイレ
男女別空調
個別空調エレベーター
有セキュリティ
有駐車場
無耐震
新耐震基準基準階天井高
2500mm空室延床面積
113.12坪情報更新日
2025/12/12マルキビルディングのテナント募集中区画
| 階数 | 面積 | 賃料(共益費含む) | 保証金 | 入居可能日 | 検討リスト | 詳細 |
|---|---|---|---|---|---|---|
| 2 | 38.31坪 | 674,256円/月(17,600円/坪) | 367万円 | 2026年4月上旬 | ||
| 3 | 38.31坪 | 589,974円/月(15,400円/坪) | 321万円 | 相談 | ||
| 5 | 36.50坪 | 562,100円/月(15,400円/坪) | 306万円 | 即 |
…新着物件
アクセス
マルキビルディングの物件情報
マルキビルディング(千代田区神田三崎町)は水道橋駅(西口)から徒歩5分の賃貸オフィスです。マルキビルディングは水道橋駅(西口)の他に九段下駅(7番出口)徒歩8分、飯田橋駅(A5番出口)徒歩8分で利用も可能です。

