3階は現在募集がありません
2フロア募集区画あり

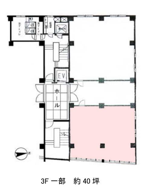
岩本町ビル 3階

前の写真 次の写真

物件概要

物件番号

393-00009-20

物件名

岩本町ビル

所在地

面積

40.00坪

賃料(共益費含)


入居日

募集終了

保証金

礼金

更新料

償却費

竣工

1963年1月

構造

RC

規模

地上10階/地下1階

トイレ

男女別

空調

個別空調

エレベーター

セキュリティ

駐車場

耐震

耐震補強済み

基準階天井高

2550mm

空室延床面積

102.55坪

最寄駅

情報更新日

2025/11/17

岩本町ビルのテナント募集中区画

階数 面積 賃料(共益費含む) 保証金 入居可能日 検討リスト 詳細
3 40.00坪 616,000円/月(15,400円/坪) 240万円 2026年1月中旬
5 62.55坪 1,032,006円/月(16,498円/坪) 650万円
…新着物件

アクセス

岩本町ビルの物件情報

岩本町ビル(千代田区神田岩本町)は岩本町駅(A3番出口)から徒歩1分の賃貸オフィスです。
地上10階建て、ビル1階にはコンビニエンスストアが入居中でちょっとした買い物に便利です。
外観・設備は築年数相応の落ち着いた佇まいですが、何よりの強みは利便性と柔軟性。特に、都営新宿線「岩本町」駅は目と鼻の先、JR「秋葉原」駅も徒歩圏内にあり、通勤や来客対応における移動のしやすさが特長です。
貸室は12坪〜85坪まで幅広い分割実績があり、スタートアップの立ち上げから、中規模オフィスへのステップアップ、あるいは複数部門での利用まで、様々なニーズに対応。
コンビニ・飲食店・郵便局・銀行も周辺に揃い、日常業務をしっかり支えてくれる安心感もプラスされています。
岩本町ビルは岩本町駅(A3番出口)の他に秋葉原駅(5番出口)徒歩2分、神田駅(5番出口)徒歩7分で利用も可能です。

近隣のエリア・駅から探す