岩本町ビルのテナント募集中区画
| 階数 | 面積 | 賃料(共益費含む) | 保証金 | 入居可能日 | 検討リスト | 詳細 |
|---|---|---|---|---|---|---|
| 5 | 62.55坪 | 1,032,006円/月(16,498円/坪) | 650万円 | 即 |
…新着物件
アクセス
岩本町ビルの物件情報
岩本町ビル(千代田区神田岩本町)は岩本町駅(A3番出口)から徒歩1分の賃貸オフィスです。地上10階建て、ビル1階にはコンビニエンスストアが入居中でちょっとした買い物に便利です。
外観・設備は築年数相応の落ち着いた佇まいですが、何よりの強みは利便性と柔軟性。特に、都営新宿線「岩本町」駅は目と鼻の先、JR「秋葉原」駅も徒歩圏内にあり、通勤や来客対応における移動のしやすさが特長です。
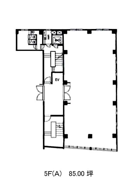
貸室は12坪〜85坪まで幅広い分割実績があり、スタートアップの立ち上げから、中規模オフィスへのステップアップ、あるいは複数部門での利用まで、様々なニーズに対応。
コンビニ・飲食店・郵便局・銀行も周辺に揃い、日常業務をしっかり支えてくれる安心感もプラスされています。岩本町ビルは岩本町駅(A3番出口)の他に秋葉原駅(5番出口)徒歩2分、神田駅(5番出口)徒歩7分で利用も可能です。

