廣瀬第3ビル 3階
物件概要
廣瀬第3ビルのテナント募集中区画
| 階数 | 面積 | 賃料(共益費含む) | 保証金 | 入居可能日 | 検討リスト | 詳細 |
|---|---|---|---|---|---|---|
| 3 | 38.73坪 | 応相談(応相談) | 応相談 | 即 |
…新着物件
アクセス
廣瀬第3ビルの物件情報
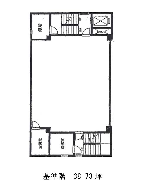
廣瀬第3ビル(千代田区神田錦町)は竹橋駅(3b番出口)から徒歩4分の賃貸オフィスです。基準の貸室は1フロア1テナント仕様で各38.73坪。長方形の間取りで、お手洗いと湯沸室の水回りは室外に設置されています。トイレはフロア毎に男性用・女性用と交互に配置。執務室は間取りからするとデッドスペースがほぼ無いことと無柱空間であることから、お部屋のサイズ目一杯有効利用できそうです。
廣瀬第3ビルは竹橋駅と神保町駅からそれぞれ徒歩4分の立地。ビル1階ではお弁当チェーン店が営業中ですので、ランチ等に便利なほか、目印にもなるでしょう。廣瀬第3ビルは竹橋駅(3b番出口)の他に神保町駅(A9番出口)徒歩4分、大手町駅(C2b番出口)徒歩9分で利用も可能です。

