5階は現在募集がありません
1フロア募集区画あり

廣瀬第3ビル 5階

前の写真 次の写真

物件概要

物件番号

394-00042-50

物件名

廣瀬第3ビル

所在地

面積

38.73坪

賃料(共益費含)


入居日

募集終了

保証金

礼金

更新料

償却費

竣工

1977年9月

構造

SRC

規模

地上9階

トイレ

男女共用

空調

個別空調

エレベーター

セキュリティ

駐車場

耐震

旧耐震基準

基準階天井高

2600mm

空室延床面積

38.73坪

最寄駅

情報更新日

2025/11/12

廣瀬第3ビルのテナント募集中区画

階数 面積 賃料(共益費含む) 保証金 入居可能日 検討リスト 詳細
3 38.73坪 応相談(応相談) 応相談
…新着物件

アクセス

廣瀬第3ビルの物件情報

廣瀬第3ビル(千代田区神田錦町)は竹橋駅(3b番出口)から徒歩4分の賃貸オフィスです。
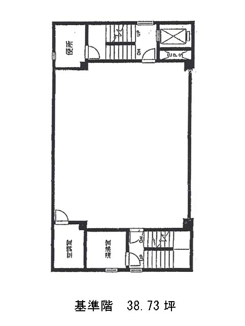
基準の貸室は1フロア1テナント仕様で各38.73坪。長方形の間取りで、お手洗いと湯沸室の水回りは室外に設置されています。トイレはフロア毎に男性用・女性用と交互に配置。執務室は間取りからするとデッドスペースがほぼ無いことと無柱空間であることから、お部屋のサイズ目一杯有効利用できそうです。
廣瀬第3ビルは竹橋駅と神保町駅からそれぞれ徒歩4分の立地。ビル1階ではお弁当チェーン店が営業中ですので、ランチ等に便利なほか、目印にもなるでしょう。
廣瀬第3ビルは竹橋駅(3b番出口)の他に神保町駅(A9番出口)徒歩4分、大手町駅(C2b番出口)徒歩9分で利用も可能です。

近隣のエリア・駅から探す