4階は現在募集がありません
第2小林ビル 4階
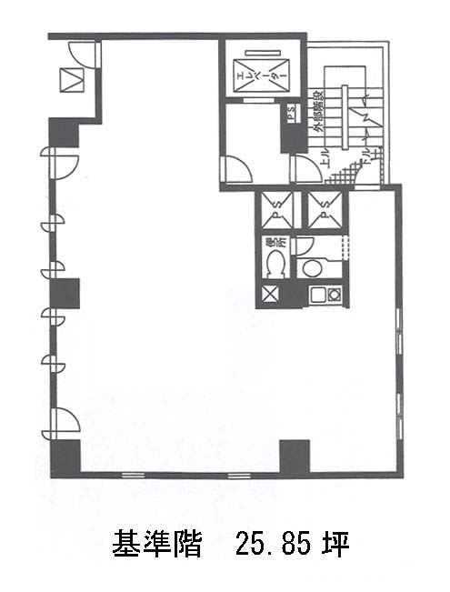
物件概要
第2小林ビルのテナント募集中区画
現在、空室がございません。
アクセス
第2小林ビルの物件情報
第二小林ビル(千代田区神田司町)は淡路町駅(A2番出口)から徒歩3分の賃貸オフィスです。第二小林ビルは淡路町駅(A2番出口)の他に小川町駅(A2番出口)徒歩3分、神田駅(5番出口)徒歩4分で利用も可能です。

